Добро пожаловать на http://vipplan.ru

Випплан Мариинск - это тысячи проектов домов в нашем каталоге!

Вы всегда сможете найти для себя проект дома вашей мечты! Даже если этого не случилось, мы готовы в любую минуту предложить проект индивидуального дома.

Забыли пароль?
Вы еще не регистрировались?

Перейдите по ссылке ниже на страницу регистрации.

Регистрация...

Внимание!!!

В проектную документацию могут быть внесены изменения любой сложности, в соответствии в Вашими пожеланиями!

Полезные статьи

Фундамент под гараж

Обычно фундаменты под гараж делаются из бетонного раствора и заливаются, как монолит. Гаражные фундаменты так же можно укладывать из бетона с применением бутового камня. Такие фундаменты тоже считаются монолитными. В этом случае происходит экономия бетона....

Уклон кровли дома

Чтобы вода быстрее уходила с кровли Вашего дома, скатам необходимо придать уклон, который выражающийся в процентах или градусах и измеряющийся геодезическими инструментами. Уклон кровли обозначает угол наклона ската к горизонту. Чем больше уклон, тем круче крыша. У новомодных зданий наклон кровли делают не очень большим....

Проекты домов и коттеджей > Каталог проектов домов > Проект дома с подземным гаражом Vg1073

Проект дома с подземным гаражом Vg1073

Проект дома с подземным гаражом
Зарегистрируйтесь

Проект № Vg1073


Техническое описание
Общая площадь: 204.41 м2
Жилая площадь: 120.96 м2
Высота здания: 8.92 м
Размеры дома: 9.32м×10.32м
Кол-во комнат: 6
Цокольный этаж: есть
Гараж: нет
Мансарда: есть

Kонструкция
Фундамент: Блоки ФБС
Перекрытия: Сборные ж/б плиты
Материал стен: Бетонные блоки

Архитектурный раздел
Конструктивный раздел
Инженерный раздел
АР+КР - 64 000 (Со скидкой 20%)
АР+КР+ИР - 135 400 (Со скидкой 50%)
Проект индивидуального одноэтажного жилого дома с подвалом и мансардой с размерами здания 9,32 x 10,32 м. Наружная отделка здания – фасадные панели. Фундамент – блоки ФБС (ленточный под несущими стенами). Наружные стены –минераловатные плиты, андезитобазальтовый блок, минераловатные плиты, фасадные панели. Внутренние стены – андезитобазальтовый блок. Перегородки – андезитобазальтовый блок. Пол подвала – пол по грунту. Межэтажные перекрытия – сборные ж/б плиты перекрытия. Крыша – сложная. Кровля – битумная черепица. Окна — металлопластиковые. Лестницы — деревянные
Генплан застройки участка / Паспорт проекта 7000 руб / 10000 руб
Инженерный раздел (полный) 71400 руб (102000 руб)
Смета на строительство 51000 руб
Теплотехнический расчет материалов стен Бесплатно
Стоимость проекта со незначительнми изменениями 74900 руб
Стоимость проекта со средними изменениями* 90200 руб
Стоимость проекта со значительными изменениями** 94300 руб

План цокольного этажа


Холл — 8,03 кв м
Помещение 1 — 6,84 кв м
С/у — 4,77 кв м
Комната — 15,37 кв м
Сауна — 5,58 кв м
Гараж — 25,43 кв м

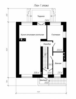
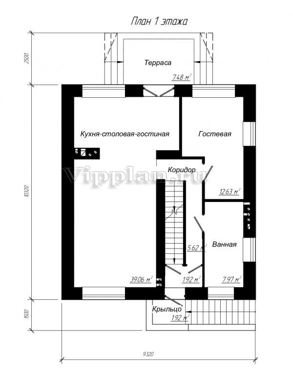
План первого этажа


Тамбур — 1,92 кв м
Коридор — 5,62 кв м
Гостиная — 39,06 кв м
Гостевая — 12,63 кв м
Ванная — 7,97 кв м

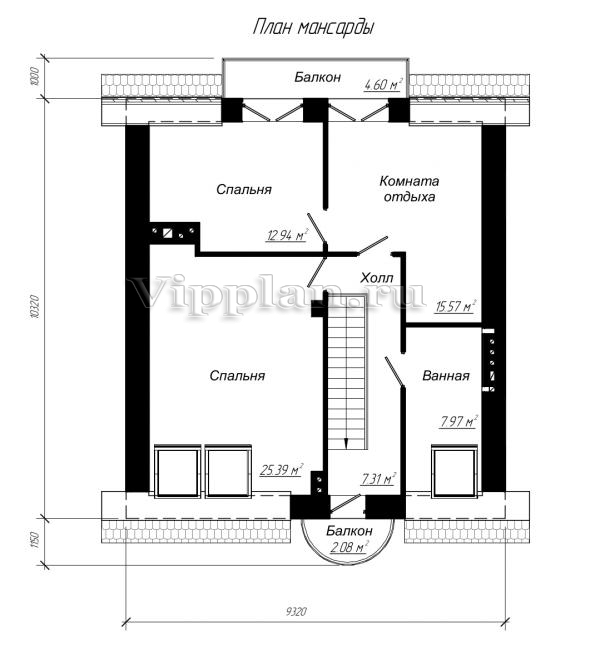
План мансардного этажа


Холл — 7,31 кв м
Ванная — 7,97 кв м
Комната — 15,57 кв м
Спальня — 12,94 кв м
Спальня — 25,39 кв м
Балкон - 1,38 кв м
Балкон - 0,62 кв м
Проект дома с подземным гаражом Проект дома с подземным гаражом Проект дома с подземным гаражом Проект дома с подземным гаражом
Внесение изменений и привязка к участку строительства

В любой из проектов от компании VIPplan - Мариинск по вашему желанию могут быть внесены изменения в материалы стен, материалы наружной отделки дома, а также будет произведена адаптация проекта под конкретный регион строительства (с учетом грунтов региона, геологических особенностей вашего участка и местных климатических условий) - БЕСПЛАТНО !!! (кроме проектов со скидкой и проектов наших партнеров).

Любой из проектов, размещенных на сайте mariinsk.vipplan.ru мы можем выполнить из требуемых вам строительных материалов: ячеистый бетон (газобетон, пеноблок), керамоблок, кирпич, шлакоблок, бетонный блок, дерево (брус, клееный брус), каркасная технология (деревянный каркас, металлокаркас (ЛСТК)).

Фасад дома и его наружную отделку так же возможно выполнить с применением различных облицовочных материалов: структурной штукатурки, (с утеплителем и без), сайдингом (пластиковый или металлосайдинг), фиброплитами, кирпича.

 
6 Избранные
проекты

Доставка проектов по России: Москва (Московская область), Санкт-Петербург (Ленинградская область), Краснодар, Ростов-на-Дону, Ставрополь, Сочи, Волгоград, Новосибирск, Белгород, Брянск, Воронеж, Саратов, Хабаровск, Астрахань, Нальчик, Владикавказ, Екатеринбург, Тюмень, Самара, Нижний Новгород, Казань, Пермь, Уфа, Челябинск, Красноярск, Ханты-Мансийск, Иркутск, Курган, Оренбург, Омск, Томск, Барнаул, Новокузнецк, Кемерово, Абакан, Чита, Якутск, Южно-Сахалинск, Петропавловск-Камчатский и страны ближнего зарубежья: Белоруссия, Украина, Казахстан