Добро пожаловать на http://vipplan.ru

Випплан Мариинск - это тысячи проектов домов в нашем каталоге!

Вы всегда сможете найти для себя проект дома вашей мечты! Даже если этого не случилось, мы готовы в любую минуту предложить проект индивидуального дома.

Забыли пароль?
Вы еще не регистрировались?

Перейдите по ссылке ниже на страницу регистрации.

Регистрация...

Внимание!!!

В проектную документацию могут быть внесены изменения любой сложности, в соответствии в Вашими пожеланиями!

Полезные статьи

Советы по проектированию дома

Представляем Вашему вниманию несколько советов по проектированию дома. Все что касается выбора участка, размещению дома на участке, подбора проекта на строительство дома, советы по выбору технологии строительства и материалов и т.д....

Искусственный камень

Среди современных материалов, особого внимания заслуживает искусственный камень. Естественность и красота натурального камня очевидна. Но нужно реально оценивать свои возможности и присмотреться именно к искусственному камню, так как сам искуственный камень и стоимость производства работ с ним в Мариинске значительно дешевле чем натуральный....

Проекты домов и коттеджей > Каталог проектов домов > Проект индивидуального двухэтажного жилого дома в средиземноморском стиле Vg2382

Проект индивидуального двухэтажного жилого дома в средиземноморском стиле Vg2382

Проект индивидуального двухэтажного жилого дома в средиземноморском стиле
Зарегистрируйтесь

Проект № Vg2382


Техническое описание
Общая площадь: 223.11 м2
Жилая площадь: 126.37 м2
Высота здания: 9.13 м
Размеры дома: 11.12м×16.72м
Кол-во комнат: 6
Цокольный этаж: нет
Гараж: нет
Мансарда: нет

Kонструкция
Фундамент: Монолитная ж/б плита
Перекрытия: Монолитное ж/б
Материал стен: Кирпич

Архитектурный раздел
АР+КР - 64 000 (Со скидкой 20%)
Модель проекта индивидуального двухэтажного жилого дома с размерами здания 11,12 x 16,72 м. Наружная отделка здания - фасадная штукатурка. Фундамент - монолитная ж/б плита. Наружные стены - забутовочный кирпич с утеплителем и отделкой фасадной штукатуркой. Внутренние стены - забутовочный кирпич. Перегородки - забутовочный кирпич. Пол первого этажа - пол по фундаментной плите. Межэтажное перекрытие - монолитное ж/б. Крыша многоскатная. Кровля - натуральная черепица. Окна - металлопластиковые. Лестница - металлическая.
Генплан застройки участка / Паспорт проекта 7000 руб / 10000 руб
Инженерный раздел (полный) 111500 руб
Смета на строительство 55750 руб
Теплотехнический расчет материалов стен Бесплатно
Стоимость проекта со незначительнми изменениями 74400 руб
Стоимость проекта со средними изменениями* 91200 руб
Стоимость проекта со значительными изменениями** 95600 руб

План первого этажа


Тамбур - 5,44 кв м
Холл - 5,03 кв м
Кухня - 10,88 кв м
Гостиная - 31,62 кв м
Гостевая - 9,87 кв м
С/у - 3,37 кв м
Бойлерная - 6,95 кв м
Гараж - 35,52 кв м

Проект индивидуального двухэтажного жилого дома в средиземноморском стиле

Проект индивидуального двухэтажного жилого дома в средиземноморском стиле

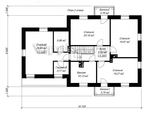
План второго этажа


Холл- 6,32 кв м
Спальня - 25,64 кв м
Спальня - 20,16 кв м
Спальня - 19,81 кв м
Спальня - 19,27 кв м
Ванная - 10,13 кв м
С/у - 5,88 кв м
Гардероб - 3,77 кв м
Балкон 1 - 3,75 кв м
Балкон 2 - 3,78 кв м
Проект индивидуального двухэтажного жилого дома в средиземноморском стиле Проект индивидуального двухэтажного жилого дома в средиземноморском стиле Проект индивидуального двухэтажного жилого дома в средиземноморском стиле Проект индивидуального двухэтажного жилого дома в средиземноморском стиле

Модификации проектов

Внесение изменений и привязка к участку строительства

В любой из проектов от компании VIPplan - Мариинск по вашему желанию могут быть внесены изменения в материалы стен, материалы наружной отделки дома, а также будет произведена адаптация проекта под конкретный регион строительства (с учетом грунтов региона, геологических особенностей вашего участка и местных климатических условий) - БЕСПЛАТНО !!! (кроме проектов со скидкой и проектов наших партнеров).

Любой из проектов, размещенных на сайте mariinsk.vipplan.ru мы можем выполнить из требуемых вам строительных материалов: ячеистый бетон (газобетон, пеноблок), керамоблок, кирпич, шлакоблок, бетонный блок, дерево (брус, клееный брус), каркасная технология (деревянный каркас, металлокаркас (ЛСТК)).

Фасад дома и его наружную отделку так же возможно выполнить с применением различных облицовочных материалов: структурной штукатурки, (с утеплителем и без), сайдингом (пластиковый или металлосайдинг), фиброплитами, кирпича.

 
6 Избранные
проекты

Доставка проектов по России: Москва (Московская область), Санкт-Петербург (Ленинградская область), Краснодар, Ростов-на-Дону, Ставрополь, Сочи, Волгоград, Новосибирск, Белгород, Брянск, Воронеж, Саратов, Хабаровск, Астрахань, Нальчик, Владикавказ, Екатеринбург, Тюмень, Самара, Нижний Новгород, Казань, Пермь, Уфа, Челябинск, Красноярск, Ханты-Мансийск, Иркутск, Курган, Оренбург, Омск, Томск, Барнаул, Новокузнецк, Кемерово, Абакан, Чита, Якутск, Южно-Сахалинск, Петропавловск-Камчатский и страны ближнего зарубежья: Белоруссия, Украина, Казахстан